这是一套147平米的现代简约风格装修案例,整体空间以极简舒适的空间基础,搭配上马卡龙色调的软装与配色,营造出一种浪漫温馨的情趣空间感,令人温情而自然。
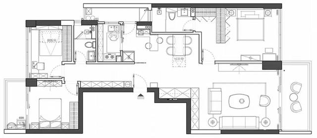
平面布置图
客厅
▲客厅整体无主灯的空间基础,装上嵌入式筒灯,电视墙上方一排的灯槽,做上灯带后,让空间照明均匀舒适而又时尚层次。
▲电视墙在硬包背景的基础,装上大理石质感的悬空电视柜,侧边还有一个文化石的柱子,在简雅时尚的空间视觉下,布置装饰画与陶艺少女兔装饰,营造出一种活泼温馨的浪漫与时尚感。
▲灰色的沙发墙挂上一幅放飞气球的装饰画,布置布置沙发,还有儒雅的地毯,蓝色的单人沙发椅,也让空间显得格外的自然舒适。
▲石材台面的茶几,还有细腻精致的软装布置,都让空间显得格外的浪漫情趣。
▲银色的落地长杆灯,点缀在现代风的空间里,显得带来了个性时尚的空间气质。
餐厅
▲餐厅两侧分别是吧台与装饰镜面,中间布置上木质餐桌与皮质的餐椅,还有马卡龙色调的软装布置,也让空间显得充满优雅舒适的浪漫情趣感。
▲餐厅旁边还有一个吧台,这使得餐厨空间多了一种情趣舒适的选择。
▲黑色的屏风与黑框厨房门相呼应,吧台后方也有一个水槽布置,结合吧台侧边与天花的木质感,布置粉色的茶具、几盏情趣文艺的吊灯布置,也让空间显得充满了浪漫舒适的情趣感。
厨房
▲厨房在哑光灰色的墙面基础,搭配白色的橱柜,灰白配的简约空间,使得做饭的氛围也充满清爽舒适的简约感。
走廊
▲走廊两边分别是定制柜与拼色墙,结合筒灯与灯带的装饰,在实用与艺术之间,呈现出一种别样的生活体验。
卧室
▲卧室以硬包+木饰面的床头墙,结合皮质靠背的床铺,还有灰色的窗帘与床单,整体现代舒适的氛围,结合无主灯的空间,显得充满端庄大方的气质。
▲圆形的床头柜,顶上一盏球形吊灯,也为空间带来了几分端庄舒适的大方气息。
▲床尾布置上斗柜与梳妆台,摆上装饰画、花瓶与金属制的台灯,还有一张暗绿色的梳妆椅,在简单的空间与华丽的细节装饰下,铺叙出一种舒适从容的生活体验。
次卧
▲次卧床头墙也是硬包的背景墙质感,结合灰蓝色的皮质床,还有灰色床头柜,精致的床头柜与小摆件,也为空间添增了几分简约自然的气质。
▲床尾的定制衣柜留出了一种电视柜与淡蓝色书架的位置,布置上书籍、摆件与装饰画,也是呈现出一种端详安静的现代气质。
书房
▲书房做了一张收纳式的床铺设计,平时办公就收起来保持宽敞的书房环境,必要的时候可以展开床铺,把书桌做成客房用,空间利用灵活自然。
▲百叶窗的设计,让书房的采光不会太刺眼,又不会太昏暗,灵活控制光线,结合常常的悬空书桌,让书房的办公环境充满惬意自然的舒适感。
▲拐角位置的收纳柜与墙面上的书架,布置书籍、花瓶与时钟,也是显得更加文艺舒适。
卫生间
▲客卫空间以灰色木纹砖,结合木色的洗手盆柜,装上一个开放+镜子结合的浴室收纳柜,洗漱用品、化妆品都可以收纳到这个位置,方便实用而简洁。
▲淋浴房的花洒部分墙面是以粗糙的文化砖,整体空间感显得现代而又时尚。
▲主人卫生间在哑光灰色的地砖基础,结合白色洗手盆柜,还有镜面柜门的吊柜,搭配出一种时尚优雅的卫浴体验。
设计:漾设计 ,点评:设计馆
